Галереи
  • Спорткомплекс с бассейном
  • Баскетбольный комплекс
  • Спорткомплекс с гостиницей
  • Кафе-бар
  • Авиаангар в Симферополе
  • Терминал внутренних рейсов
  • Высотный дом г.Киев
  • Интерьер 100-1
  • Интерьер 100-2
  • Панельный дом г.Киев
  • Интерьер 170-1
  • Коттедж на Нивках
  • Дом в современном стиле
  • Садовый дом
  • Коттедж в Дарнице
  • Выставочный стенд
  • Турецкий дом
  • Коттедж в с. Гнедын
  • База отдыха Vip I
  • База отдыха Vip II
  • Коттедж в г.Ирпень
  • Дом на ул.Стрилецкой
  • Дом в СТ "Приозерное"
  • Дом в с. Иванковичи
  • Кафе на ул.И.Федорова
  • Автосалон и СТО г.Бровары
  • Аэропорт г.Арциз
  • Реконструкция зоопарка г.Киев
  • Предыдущая галерея
  • Следующая галерея
  • Mainpage
  • Contacts
  • Предыдущий слайд
  • Следующий слайд

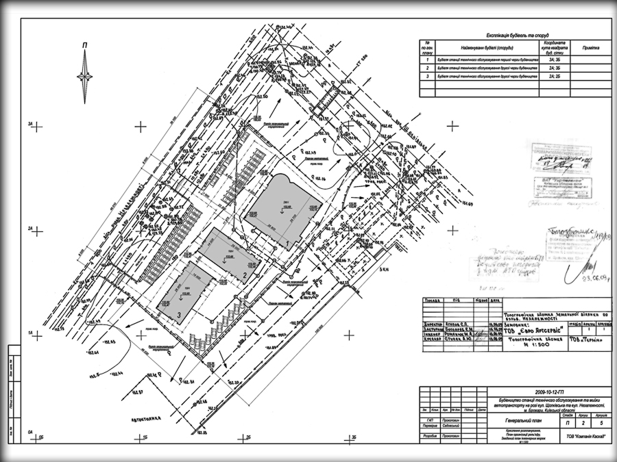
Строительство комплекса станций СТО, Автосалонов, мойки автотранспорта на пересечении ул.Щолковской и ул.Независимости г.Бровары, Киевской области

Весь комплекс зданий запроектирован исходя из рационального использования участка застройки, с соблюдением требуемых норм. Центральным зданием в ансамбле является двухэтажный комплекс, на втором этаже которого размещаются офисные помещения. Все здания независимые друг от друга, но имеют общую зону парковки. Состав проекта на данный момент: Стадия П (проект), ПЗ, ГП, ТХ, АР, КЗ, КМ, ОВ, ВК, ЕО